Oficinas STX Logistics
El proyecto se ubica en Coslada, municipio al este de Madrid. Se sitúa en una parcela en esquina dentro del tejido industrial de la zona, rodeado por varios edificios de naves industriales. El edificio se concibe para funcionar como centro logístico de la empresa de mensajería STX, debiendo albergar una nueva zona de oficinas, entre otros usos.
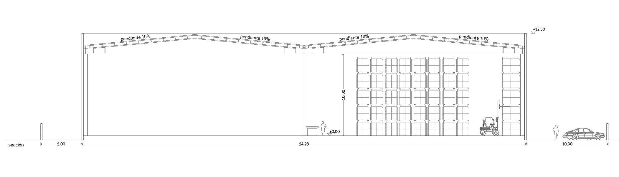
Programáticamente, el volumen se divide en dos zonas principales: una destinada a oficinas y otra, a nave. La zona de oficinas se dispone junto al acceso principal, contando con tres plantas destinadas a dicho uso y un aparcamiento en superficie para dar servicio al edificio. El resto del espacio se destina a nave de 10 metros de altura libre, disponiendo de una segunda entrada para el servicio de carga y descarga, con control de acceso y espacio de maniobra suficiente para vehículos pesados.
En el resto del edificio, una chapa ondulada perforada de aluminio envuelve la totalidad del volumen. Gracias a ello, se consigue unificar el aspecto de la fachada y garantizar un cierto grado de protección solar, permitiendo la entrada de luz difusa en el interior de las oficinas y privatizando el área de trabajo sin impedir las visuales al exterior. Por la noche, la acción de la fachada se invierte, reflejando en el exterior la actividad que se produce en su interior.
El edificio busca transmitir el carácter de la empresa. Para ello, se genera un volumen sencillo en el que destaca el logotipo y el color principal de STX, añadiendo el diseño corporativo a la imagen del edificio. El acceso al interior queda marcado por un retranqueo y por el empleo en la fachada de paneles de composite azul.
Oficinas STX Logistics
STX SA
Industrial, Oficina
Coslada, Madrid (España)
2010-2011
7.570 m²
Propuesta
Nombre
Cliente
Tipología
Ubicación
Año
Superficie
Estado

